Mřížový žlab C CGR 50 A2

Výr. č. 6016253 | EAN 4012195891352

3000 mm
50 mm
4,5 mm
nie
Popis produktu
Popis produktu
Mřížový žlab ve tvaru C z bodově svařovaného ocelového drátu s výškou bočnice 50 mm.
Magnetický útlum stínění 15 dB.
  • Magnetický útlum stínění
  • Vhodné pro sprinklery
  • Communautés Européennes, Vyhlásenie ES o zhode podľa smerníc ES
  • Mřížový žlab C, výška bočnice 50 mm
  • Environmentální prohlášení o produktu (EPD)
  • Uhlíková stopa (PCF)
Technické údaje

CO2 stopa (Product Carbon Footprint)

CO2 stopa (GWP) od kolísky po bránu 10,2983 kg CO2e / 1 meter
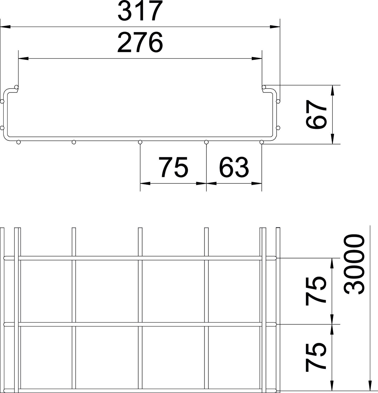
Dĺžka 3000 mm
Druh spojky káblového nosného systému priskrutkované
Farba nehrdzavejúca oceľ
Integrovaná deliaca stena bez
Materiál Ušľachtilá oceľ, nehrdzavejúca 1.4301
Nehrdzavejúca oceľ, morená áno
Povrch lesklá, dodatočne upravená
Prevedenie spojky bez spojky
Priemer drôtu 4,5 mm
Rozmer 50x300x3000
Rozmer A 276 mm
Rozmer B 317 mm
Rozmer H 67 mm
Rozmer l1 75 mm
Rozmer l2 (mm) 63 mm
Šírka 300 mm
Šírka 11,81 in
Tvar profilu Tvar C
Typ testu zaťaženia podľa IEC 61537 Typ II
Úžitkový prierez 116 cm²
Úžitkový prierez 11600 mm²
Vyhotovenie s veľkým rozpätím nie
Výška 1,97 in
Výška 50 mm
Vzdialenosť podpier 1,0 m 1,1 kN/m
Vzdialenosť podpier 1,5 m 0,7 kN/m
Vzdialenosť podpier 2,0 m 0,4 kN/m
Zachovanie funkčnosti nie

Technické údaje

Záťažový diagram mrežového žľabu C typu CGR 50 VA

Záťažový diagram mrežového žľabu C typu CGR 50 VA
  • Prípustné zaťaženie káblových žľabov/rebríkov v kN/m bez zaťaženia pracovnou silou Prípustné zaťaženie káblových žľabov/rebríkov v kN/m bez zaťaženia pracovnou silou
  • Vzdialenosť podpier v m Vzdialenosť podpier v m
  • Prehyb priečnika v mm pri prípustnom kN/m Prehyb priečnika v mm pri prípustnom kN/m
  • Schéma zaťaženia pri skúšobnej metóde Schéma zaťaženia pri skúšobnej metóde
  • Krivka zaťaženia so šírkou káblového žľabu/rebríka v mm Krivka zaťaženia so šírkou káblového žľabu/rebríka v mm
  • Krivka prehybu priečnika podľa vzdialenosti podpier Krivka prehybu priečnika podľa vzdialenosti podpier
Všetky typy

Všetky typy

Typ Dĺžka Šírka Výška Priemer drôtu Úžitkový prierez Zachovanie funkčnosti Výr. č. Množstvo najm. PJ
CGR 50 50 A2 3000 mm 50 mm 50 mm 4,5 mm 13 cm² nie 6016200
3 m
CGR 50 100 A2 3000 mm 100 mm 50 mm 4,5 mm 33 cm² nie 6016235
3 m
CGR 50 200 A2 3000 mm 200 mm 50 mm 4,5 mm 74 cm² nie 6016251
3 m
CGR 50 300 A2 3000 mm 300 mm 50 mm 4,5 mm 116 cm² nie 6016253
3 m
CGR 50 400 A2 3000 mm 400 mm 50 mm 4,5 mm 157 cm² nie 6016255
3 m
Príslušenstvo

Montážne príslušenstvo

Výrobky Typ Výr. č. Množstvo najm. PJ
Montážní úhelník 90° A2 Montážní úhelník 90° A2 MW 90 SL17 A2 6016278
20 Kus
Spojka A2 Spojka A2 GSV 34 A2 6016642
20 Kus
Montážní úhelník 45° A2 Montážní úhelník 45° A2 MW 45 SL10 A2 6017339
20 Kus
Přepážka 30 A2 Přepážka 30 A2 TSG 30 A2 6062052
3 m
Svorka pro upevnění přepážky Svorka pro upevnění přepážky KS GR A2 6062282
30 Kus
Na stiahnutie

Na stiahnutie

Na stiahnutie
Environmentálna deklarácia produktu (EPD) CGR 50 300 A2 / 6016253 , 1.48MB , pdf
Na stiahnutie

Na stiahnutie
Na stiahnutie

CGR 50 300 A2 / 6016253
Na stiahnutie