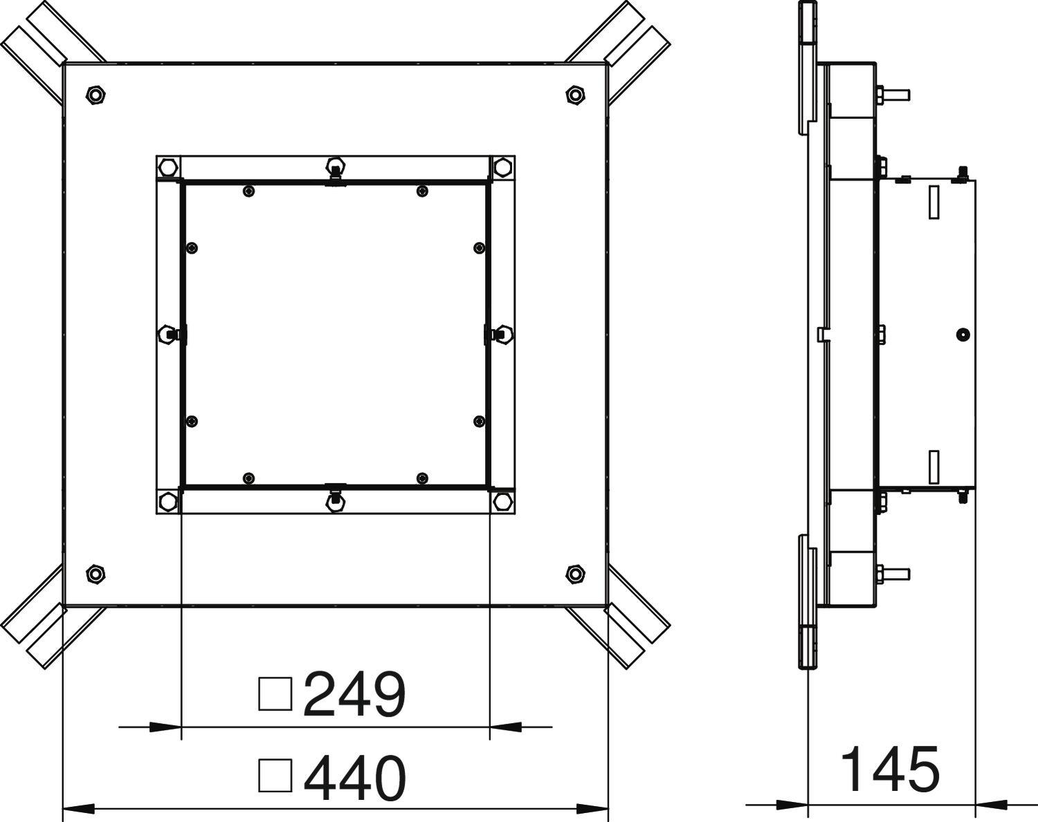
Krabice do betonu pro vestavné jednotky jmenovité velikosti 9

Výr. č. 7399852 | EAN 4012196331741

7399852 / IBD 35048 9
145 mm
48 mm
9
Popis produktu
Popis produktu
Krabice do betonu pro kanály o výšce 48 mm, připravená na kanály o šířce 250 a 350 mm.
Čtyři nastavitelné upínací prvky pro nivelační jednotky.
Integrovanou zvukovou výplň lze v rámci zhotovování vyrovnávací mazaninové vrstvy nastavovat v rozsahu max. 65 mm.
  • Communautés Européennes, Vyhlásenie ES o zhode podľa smerníc ES
  • Uhlíková stopa (PCF)
  • Obal bez plastu
  • Celý obal z recyklované lepenky
Technické údaje

CO2 stopa (Product Carbon Footprint)

CO2 stopa (GWP) od kolísky po bránu 30,5272 kg CO2e / 1 Kus
Inštalačný otvor pre podlahovú nádrž nie
Materiál Oceľ
Menovitá veľkosť pre prístrojové jednotky 9
Montážny otvor pre montážnu jednotku štvorcový
Možnosť osadenia tesnenia nie
Oddeliteľné nie
Plechové dno áno
Počet zabudovateľných prístrojov 12
Povrch pásovo zinkované
pre prípojku rúry nie
Rozmer 440x440x145
Rozmer h 145 mm
Šírka kanálu max. 350 mm
Šírka kanálu min. 250 mm
Vhodné na podlahový kanál áno
Vhodné na podpodlahový kanál prekrytý mazaninou áno
Vhodné na uzavretý podpodlahový kanál v rovine s mazaninou nie
Výška 145 mm
Výška kanála min. 48 mm
Všetky typy

Všetky typy

Typ Výška Výška kanála min. Menovitá veľkosť pre prístrojové jednotky Výr. č. Množstvo najm. PJ
IBD 35048 9 145 mm 48 mm 9 7399852
1 Kus
Na stiahnutie

List technických údajov IBD 35048 9 / 7399852 , 0.18MB , pdf
Na stiahnutie

IBD 35048 9 / 7399852
Na stiahnutie